
Depuis plusieurs années, le conseil municipal s’était engagé dans la mise en œuvre de ce projet. La maison de santé fait partie de ces services publics indispensables pour sécuriser et maintenir les populations sur nos territoires.
Après un travail de longue haleine, le projet médical a été validé par les instances régionales permettant ainsi la réalisation de la maison de santé. Grâce à l’appui de l’Agence Régionale de Santé, aux aides financières octroyées par l’Europe, l’État et la Région nous pouvons proposer un produit de qualité offrant conditions d’accueil optimales et loyers corrects. Cet ensemble contribue à rendre notre territoire attractif !
La maison de santé devient fonctionnelle début 2019 : les 400m² du bâtiment sont opérationnels pour accueillir les 3 médecins dans un premier temps puis rejoints par un 4ème, le cabinet d’infirmiers, les podologues, une sage-femme et une psychologue. Ces professionnels ont intégré sous forme de vacations des bureaux partagés.
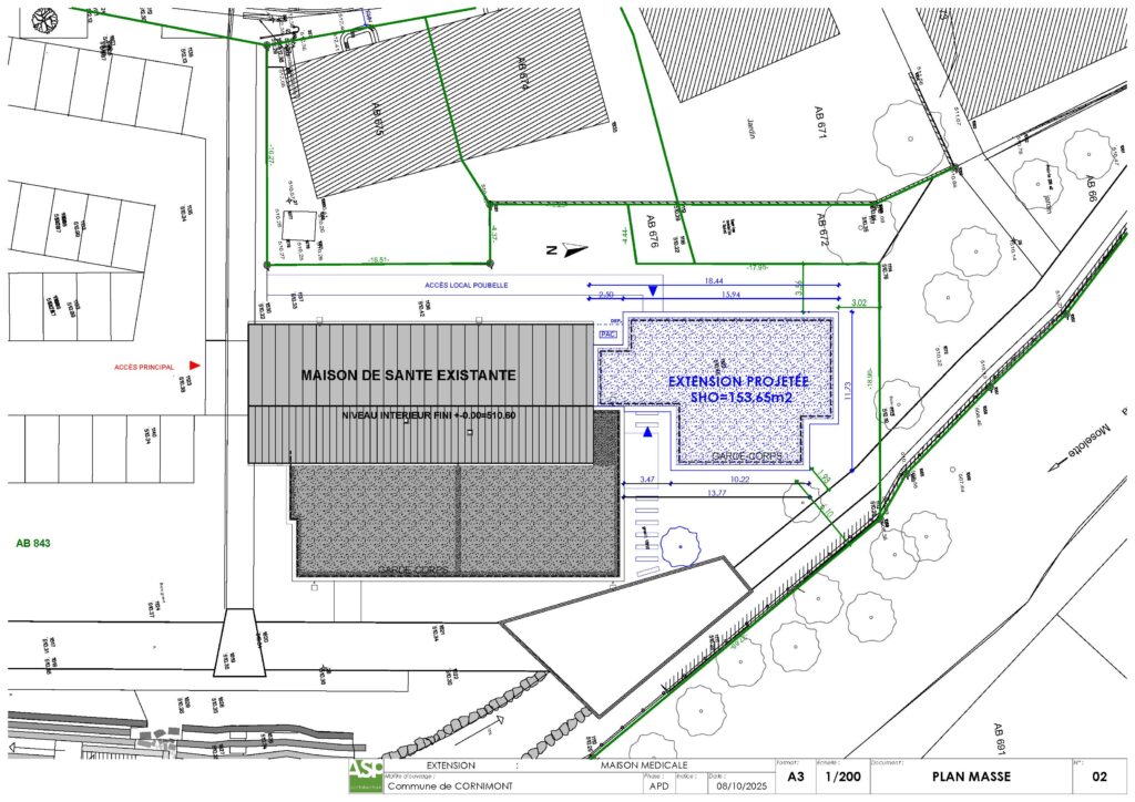
Un agrandissement est nécessaire pour accueillir de nouveaux praticiens
Suite à l’initiative de plusieurs médecins du territoire désireux de se regrouper en 2025 afin d’unir leurs forces, une nouvelle organisation médicale a vu le jour. Ce projet ambitieux s’accompagne d’un renforcement des équipes et de la diversité des soins proposés.
Désormais, les locaux accueillent une équipe élargie :
Trois infirmiers et une infirmière Azalée
Une secrétaire médicale
Cinq médecins (arrivée d’un 5ème médecin début 2026)
Une sage-femme
Deux podologues
Une psychologue
La Maison de Santé Pluridisciplinaire (MSP) atteint ses limites d’espace ; elle se révèle désormais trop exigüe pour accueillir de nouveaux professionnels. Des travaux d’extension s’imposent si nous voulons rester attractifs.
Une extension prévue dès la conception
L’agrandissement de la MSP avait été anticipé lors de sa conception en 2019. Le bureau d’études ASP, concepteur du bâtiment, est mobilisé pour concrétiser ce projet d’extension en prenant en compte les besoins actuels des professionnels. L’avant-projet est en cours de construction avec des travaux programmés pour l’année 2026.



Historique des travaux :
Le coordonnateur, M. KUNTZ missionné par l’association Pôle Santé, a travaillé en partenariat avec la Communauté de Communes et l’Agence Régionale de Santé sur la mise en œuvre des actions liées à l’offre de soins sur le territoire de la Moselotte. Les professionnels de la santé (médecins – infirmiers) ont participé activement aux différentes réunions de travail organisées avec Monsieur SCHMITT, architecte du bureau d’études ASP, retenu pour la maîtrise d’œuvre.
Les locaux ainsi réalisés répondent parfaitement aux besoins des professionnels installés dans les locaux de la maison de santé. De plus, le bâtiment a été étudié de façon à s’intégrer judicieusement dans son environnement, et à correspondre aux exigences «du label Passivhaus ».
Les terrassements ont commencé début 2018, suivis de la mise en place des réseaux et de la création des parkings. En avril, 2018 la construction du bâtiment se dessine, classé Passivhaus en matériaux naturels : ossature bois, murs isolés avec de la paille et parement de pierres.
Le travail réalisé avec sérieux, la compétence de nos services et du coordonnateur a permis de voir le bout du tunnel.
La construction est classée « Maison Passive ». Face au changement climatique, ses performances énergétiques contribuent à réduire les consommations d’énergies ainsi que les factures inhérentes à l’emploi.
La réalisation de la maison de santé en photos

Le terrassement

Les fondations

Les cloisons intérieures

La toiture



